产品
磁芯
锰锌铁氧体磁芯
镍锌铁氧体磁芯
非晶纳米晶磁芯
铁粉芯磁芯
铁硅铝磁芯
关于我们
关于德亿来
为什么选择德亿来
成为经销商
招贤纳士
资料
产品证书
新闻和事件
目录和手册
行业和应用
视频
联系我们
登录
登录
注册
发送询问
CN
EN
Russian
清除所有
返回上一级
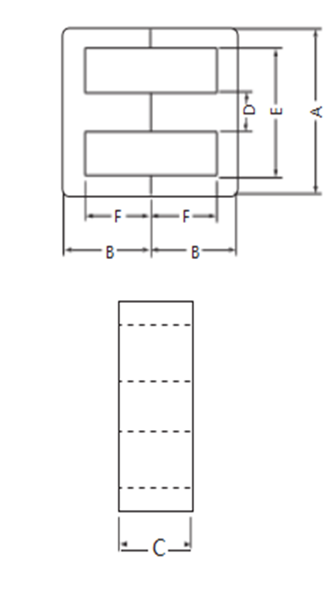
EE EF 型磁芯
EE-EF型磁芯尺寸图
法律声明
网站地图
流量统计
隐私条款
DEYILAI 上海德亿来电子有限公司 沪ICP备2024045426号-1
在线留言
在线留言
*
*
微信